20' Modular building PLUS Line
Available
For a quote on a bespoke project, please get in touch excluding VAT
Jon Akhurst and James Akhurst
01675 223197
Technical characteristics
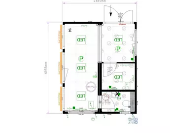
Container type
- Portable container - PLUS Line 20' (6,055 mm x 2,435 mm)






